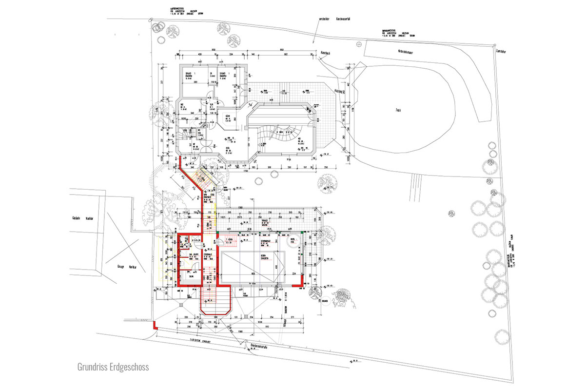
HAUS DR. KURT TIROCH

3021 Pressbaum, Niederösterreich
Bauschnitt 1 & 2

Grundlagenermittlung, Recherche
Vorentwurf
Entwurf
Behördenplanung Baubehörde
Behördeplanung Gewerbebhörde
Kostenberechnungsgrundlage Leistungsverzeichnisse
Ausführungs- und Detailplanung
Künstlerische Oberleitung
Technisch & geschäftliche Oberleitung der Bauausführung
örtliche Bauaufsicht

WEITERE PROJEKTE


© Karl Heinz Nagl | Impressum