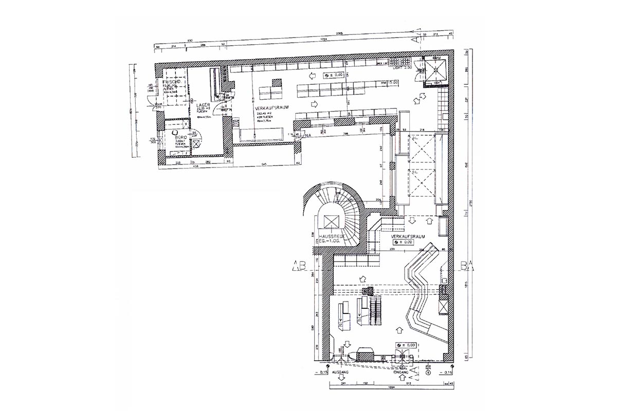
BILLA TABORSTRASSE

1020 Wien
Selbstbedienungsmarkt

Grundlagenermittlung, Recherche
Vorentwurf
Entwurf
Behördenplanung Baubehörde
Behördeplanung Gewerbebhörde
Kostenberechnungsgrundlage Leistungsverzeichnisse
Ausführungs- und Detailplanung
Künstlerische Oberleitung
Technisch & geschäftliche Oberleitung der Bauausführung
örtliche Bauaufsicht

WEITERE PROJEKTE


© Karl Heinz Nagl | Impressum